Twin Oaks
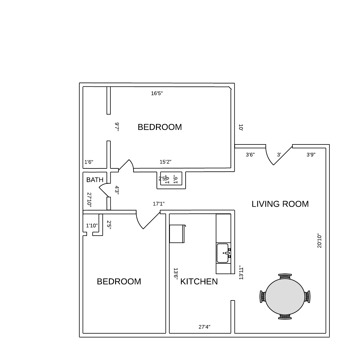
Twin Oaks apartments are located on North Cedar Street. There are 2 buildings with with 30 total units. All have central heating and air conditioning. Each unit has two bedrooms, a bathroom, a living room, eating area, and a kitchen. There is a laundry facility in each building and parking is available. Twin Oaks houses a mix of upperclassmen and graduate students. Rates are available HERE.
Twin Oaks is our overflow building so capacity can range from 60-120 residents based on either 2 ppl per apartment or 4 ppl per apartment as determine by our need to accommodate students.
Amenities:
- Central heating and air conditioning
- Frost-free refrigerator
- Range
- Garbage disposal
- Carpet / LVT in updated apartments
- 120V smoke alarms
- Dishwasher
- On-site parking
- Walking distance to campus
- Two Laundry Facilities
- Wireless high speed Internet
Specifications
Living Area
- Living Room:
11' 2" x 21' 3" - Kitchen:
7' 4" x 13' 6" - Bedroom A:
12' x 10' 6" - Bedroom B:
10' 3" x 13' 6"
Window Sizes
- Living Room:
58.5" x 46.5" - Bedroom A:
88.25" x 50.5" - Bedroom B [Apts on end of building ONLY]:
42.25" x 50.5"
Floor Plan

Close proximity to campus!





